L'immobilier par les DOM pour les DOM

Espace pro

À LOUER LOCAL COMMERCIAL 60 m2 PROCHE HÔTEL PULLMAN LE MOULE

Annonce - Réf : 1923

3
1 400 € / mois
Location Local commercial 97160
À LOUER   LOCAL COMMERCIAL 60 m2   PROCHE HÔTEL PULLMAN   LE MOULE
À LOUER   LOCAL COMMERCIAL 60 m2   PROCHE HÔTEL PULLMAN   LE MOULE
Honoraires à la charge du locataire : 1 900,00 €
Charges locataires : 160,00 €
Dépôt de garantie : 2 800,00 €
Descriptif
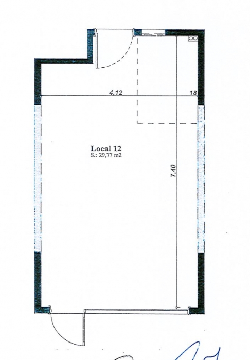
  • 60 m2

Alias Immobilier vous propose un local commercial de 60 m2, situé au rez-de-chaussée du parc d’activités Mangrove Gallery, un secteur économique en plein essor.
Profitez d’un emplacement stratégique, à proximité immédiate du futur complexe hôtelier Pullman, qui contribuera à dynamiser la ville et à attirer une clientèle plus importante. En vous installant ici, vous faites partie d’un projet commercial en pleine expansion !
Local loué brut de béton avec arrivées électriques, eau et télécom.
Loyer : 1400 euros HT + TVACharges locatives des communs : 160 euros par moisDépôt de garantie : 2800 eurosHonoraires agence : 1900 euros HT
Points forts : Surface : 60 m2 Emplacement premium : au cœur du développement économique du Moule À proximité du futur hôtel Pullman, un atout commercial majeur Idéal pour plusieurs types d’activités :
Activités commerciales : Bars, crêperie, café, brasserie, sandwicherie, cave à vin, tabac-presse, salle de sport et de remise en forme, pâtisserie, salon de thé.
Activités libérales : Cabinet de dermatologie, kinésithérapie, ostéopathie, dentisterie, sophrologie, diététique, psychologie, agence d’architecture ou de conseils.

Ne manquez pas cette opportunité unique d’installer votre activité dans un lieu stratégique.
Contactez-nous dès maintenant au xx-xx-xx-xx-xx pour plus d’informations et une visite.
Taxe foncière : 0€
Taxe foncière : 0€
Les informations sur les risques auxquels ce bien est exposé sont disponibles sur le site Géorisques : www.georisques.gouv.fr
Commercial en charge de cette annonce
SANCHEZ Nathalie
Afficher le numéro
Lui envoyer un email

Alias Immobilier

53 lot Agat Houellebourg sud 2 97122 BAIE-MAHAULT
Afficher le numéro
Fondée en 2011 par Nathalie SANCHEZ, ALIAS Immobilier reste une agence de proximité à taille humaine avec une équipe 100% féminine où la compétenc...
En savoir plus sur cette agence
Fondée en 2011 par Nathalie SANCHEZ, ALIAS Immobilier reste une agence de proximité à taille humaine avec une équipe 100% féminine où la compétence professionnelle est aussi importante que la relation humaine. Les clients finissent même parfois par devenir de véritables amis. Que ce soit à la vente, à l'achat ou à la location, une des conseillères spécialisées vous recevra directement à l'agence autour d'un bon café pour vous écouter, vous conseiller et évidemment vous accompagner ensuite dans votre projet de A à Z. Le concept de l'agence est avant tout de privilégier le contact parce que l'émotion dans l'immobilier est très souvent au coeur de vos projets (agrandissement de la famille, séparation, préparer sa retraite, laisser un patrimoine à ses enfants, etc...).
Réduire
Contact par Email
(champs obligatoires *)
Parlez nous de votre recherche (facultatif)
Agence Alias Immobilier Guadeloupe

Alias Immobilier

Afficher le numéro
Contact par Email
(champs obligatoires *)
Parlez nous de votre recherche (facultatif)
© 97immo.com - Toute reproduction textuelle ou graphique interdite