Descriptif
Villa T4 lumineuse de plain-pied 98 m² + terrasse de 28 m²
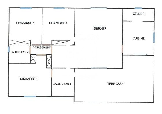
Découvrez cette agréable villa de plain-pied construite en 2006, offrant 98 m² de surface habitable, idéale pour une famille ou pour un investissement locatif.
Dès l'entrée, vous serez séduit par un vaste séjour lumineux de 33 m², offrant un bel espace de vie convivial, parfait pour partager des moments en famille ou recevoir vos proches. La maison se compose de 4 pièces, dont 3 chambres confortables, adaptées à la vie familiale ou à l'accueil d'invités.
La villa dispose également de deux salles d'eau et deux WC, garantissant confort et praticité au quotidien.
La cuisine aménagée, fonctionnelle et conviviale, ravira les amateurs de cuisine et s'ouvre sur les espaces de vie.
À l'extérieur, profitez d'une spacieuse terrasse de 28 m², idéale pour les repas en plein air, les moments de détente ou les soirées entre amis.
Implantée sur un terrain plat de 663 m², la propriété offre un bel espace extérieur piscinable, laissant libre cours à vos projets d'aménagement.
Pour plus de confort, la villa bénéficie également de deux places de stationnement extérieures.
En bon état général et de bon standing, cette maison est prête à accueillir ses nouveaux propriétaires.
Située dans un environnement calme et agréable, la villa se trouve à 5 minutes en voiture des commerces et d'une école, facilitant votre quotidien.
Une belle opportunité à découvrir sans tarder.
Honoraires à la charge du vendeur. Dans une copropriété de 5 lots. Aucune procédure n'est en cours. Classe énergie E, Classe climat E Montant moyen estimé des dépenses annuelles d'énergie pour un usage standard, établi à partir des prix de l'énergie de l'année 2023 : entre 1800.00 et 2400.00 . Les informations sur les risques auxquels ce bien est exposé sont disponibles sur le site Géorisques : georisques.gouv.fr.
Ce bien est situé dans une copropriété ne faisant l'objet d'aucune procédure en cours
Nombre de lots : 5
Les informations sur les risques auxquels ce bien est exposé sont disponibles sur le site Géorisques :
www.georisques.gouv.fr